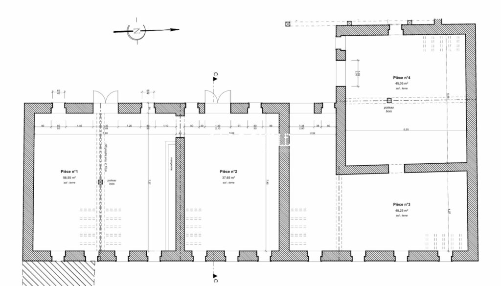
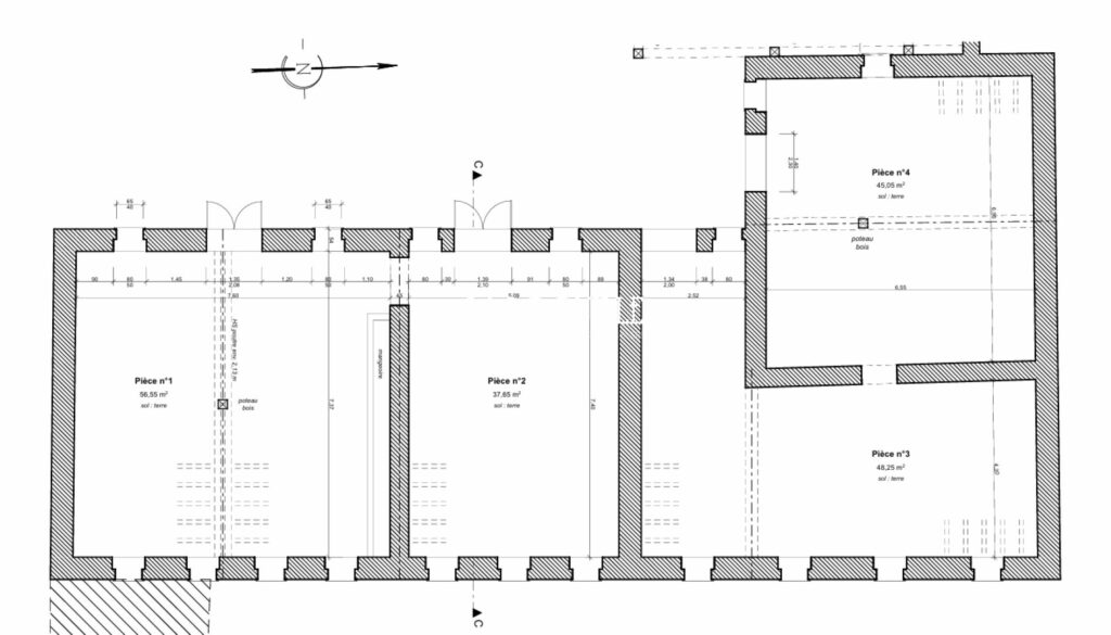
Grange Sorigny 187m2
SORIGNY
89 900€
Description
EXCLUSIVITE!!!
A découvrir proche du centre de Sorigny.
A RENOVER EN HABITATION!!!
Belle grange de 187m² au sol sur une parcelle de 1635 m² non viabilisée.
Les informations sur les risques auxquels ce bien est exposé sont disponibles sur le site Géorisques : www.georisques.gouv.fr (5.89 % honoraires TTC à la charge de l’acquéreur.)
CYRIL ABRIOUX (EI) Agent Commercial – Numéro RSAC : 813250081 – TOURS.
Résumé
-
Type Grange
-
Surface 187 m²
-
Terrain 1635 m²
-
Prix 89,900€
Détails
-
Référence 70
-
Prix 89 900€
-
Prix hors honoraires 84 900€
-
Pourcentage honoraires 5.89%
-
Les honoraires d'agence seront à la charge de l'acheteur
-
Nombre de pièces 1
Diagnostic énergétique du bien
DPE non communiqué
Consommations non exploitables
* Dont émissions de gaz à effet de serre
GES non communiqué
Consommations non exploitables
Géorisques
Les informations sur les risques auxquels ce bien est exposé sont disponibles sur le site Géorisques https://www.georisques.gouv.fr
